| Status de disponibilidade: | |
|---|---|
| Quantidade: | |
BMS
Especificaçãoof
Rodovia w feixe rolo formando máquina
Perfil:
Tipo 1
Tipo 2
Material
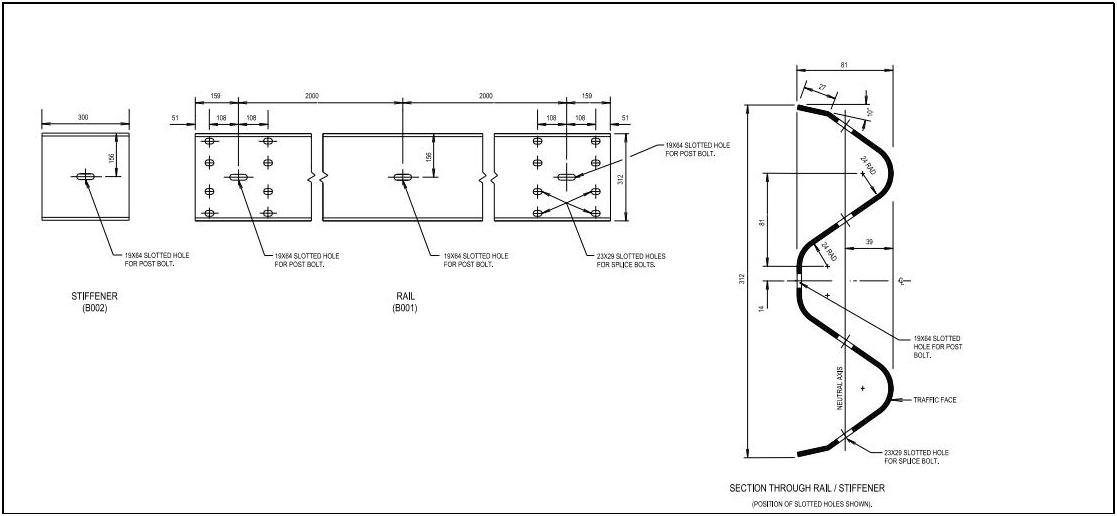
Largura eficaz: 312/502 / 506mm
Espessura do material: 2.5-3.81mm
Material aplicável: aço galvanizado, bobina de aço laminada a quente
Com força de rendimento 345-550mpa
Espessura da inspeção: 2.67 / 3.42 / 3.43mm
Trabalho seguir
Decoiler hidráulico de 6 toneladas → Dispositivo de nivelamento → Dispositivo de perfuração hidráulica → Dispositivo de alimentação → Sistema de máquina principal → Cortando hidráulico → rack de saída
Buracos de perfuração: (como segue)
Tipo 1:19x64 e 23x.29;Modelo2:19x64 e 23x29.
Total precisa de 2 moldes de perfuração
Componentes da máquina
1)6 toneladaDecoiler hidráulico: um conjunto
2)Alimentação e dispositivo de nivelamento
Com guia de material de alimentação e dispositivo de nivelamento
Acima de três para baixo quatro totalmente sete eixos de nivelamento
quadro de corpo feito deTipo de aço H450.porSoldagem; ladoespessura da parede:Q235 T30MM.Eixos fabricados de45 # aço., Diâmetro =.φ120mm., Tom banhado com dura cromo revestida, precisão usinada
3) furo de perfuraçãoDispositivo(Com quatro moldes de furos)
Motor hidráulico:37KW., Faixa de pressão hidráulica:0-25MPA (250BAR)
Ferramenta de perfuração e cortematerial:mofoCr12Mov de aço (= aço D2, com um milhão de vezes Punching / corte de vida), Tratamento térmico para HRC58-62 graus
2 cilindrosperfuração de furosistema ,totalPrecisa de quatro moldes de perfuração19x64 e 23x29 e 20x65 e 24x30
4) máquina principal
Quadro de corpo feito deTipo de aço H450.por soldagem
Rolos fabricados deCr12.Aço, CNC.Tornos, Eixos de Tratamento Térmico Diâmetro =ф95., precisão usinada
Unidade de caixa de engrenagem (rolos superior e inferior com energia)
Estrutura do tipo de coluna.Projeto(Arco memorável de ferro fundido, espessura: 55mm)Caixa de engrenagem dirigindo, sobre19 passoformar
Motor principal =.45Kw,FrequênciaMotor de Redcuter de velocidade de controle de velocidade:KSeries
Bloco deslizante:150 * 150mm.
Todosparafusos parafusos com grau 8.8(Fábricas baratas usam baixo grau 4.8)Para garantir a correção do Estrutura da máquina firmemente e vida longa durante a máquina há muito tempo
Velocidade de formação real12-16m / min
Com água friaDispositivo(Para melhor produto)
19 engrenagens dirigem, 38 eixos de transmissãoEPelo eixo)
Tipo de coluna S.tRucureProjeto(Arco memorável de ferro fundido, espessura: 55mm)
5) pós corte hidráulicoDispositivo(Total precisa de dois moldes de cortador)
Postar para cortar, pare paraCorte, três.Tipo de peças de design da lâmina de corte, nenhum motor hidráulico de blanking:37KW, com dispositivo de perfuração compartilham uma estação hidráulica
Pressão de corte:0-25MPA (250bar.);CorteMaterial de ferramentas:Cr12mov.(= Skd11 com pelo menos Um milhão de vezes de cortar a vida), Tratamento térmico para HRC58-62 graus
A energia de corte é fornecida porA estação hidráulica independente
O sistema hidráulicocom filtro de óleo para o óleofiltragem, paragarantir que o óleo circulado seja limpo e alongar a vida de sistema hidráulico. (Veja a foto abaixo)
\
6) sistema de controle PLC
Inserir a produçãoDados(Lote de produção, PCs, comprimento, etc.) Na tela sensível ao toque, ele pode terminar a produçãoAutomaticamente.
Combinado com: inversor, codificador, etc
Tolerância cortada a comprimento≤ ± 1.milímetros
Controle de voltagem24V.
7) Rack de saída:Não alimentado, Umunidade,comrolos sobre isso para fácil movimento
8) Produto acabado
Especificaçãoof
Rodovia w feixe rolo formando máquina
Perfil:
Tipo 1
Tipo 2
Material
Largura eficaz: 312/502 / 506mm
Espessura do material: 2.5-3.81mm
Material aplicável: aço galvanizado, bobina de aço laminada a quente
Com força de rendimento 345-550mpa
Espessura da inspeção: 2.67 / 3.42 / 3.43mm
Trabalho seguir
Decoiler hidráulico de 6 toneladas → Dispositivo de nivelamento → Dispositivo de perfuração hidráulica → Dispositivo de alimentação → Sistema de máquina principal → Cortando hidráulico → rack de saída
Buracos de perfuração: (como segue)
Tipo 1:19x64 e 23x.29;Modelo2:19x64 e 23x29.
Total precisa de 2 moldes de perfuração
Componentes da máquina
1)6 toneladaDecoiler hidráulico: um conjunto
2)Alimentação e dispositivo de nivelamento
Com guia de material de alimentação e dispositivo de nivelamento
Acima de três para baixo quatro totalmente sete eixos de nivelamento
quadro de corpo feito deTipo de aço H450.porSoldagem; ladoespessura da parede:Q235 T30MM.Eixos fabricados de45 # aço., Diâmetro =.φ120mm., Tom banhado com dura cromo revestida, precisão usinada
3) furo de perfuraçãoDispositivo(Com quatro moldes de furos)
Motor hidráulico:37KW., Faixa de pressão hidráulica:0-25MPA (250BAR)
Ferramenta de perfuração e cortematerial:mofoCr12Mov de aço (= aço D2, com um milhão de vezes Punching / corte de vida), Tratamento térmico para HRC58-62 graus
2 cilindrosperfuração de furosistema ,totalPrecisa de quatro moldes de perfuração19x64 e 23x29 e 20x65 e 24x30
4) máquina principal
Quadro de corpo feito deTipo de aço H450.por soldagem
Rolos fabricados deCr12.Aço, CNC.Tornos, Eixos de Tratamento Térmico Diâmetro =ф95., precisão usinada
Unidade de caixa de engrenagem (rolos superior e inferior com energia)
Estrutura do tipo de coluna.Projeto(Arco memorável de ferro fundido, espessura: 55mm)Caixa de engrenagem dirigindo, sobre19 passoformar
Motor principal =.45Kw,FrequênciaMotor de Redcuter de velocidade de controle de velocidade:KSeries
Bloco deslizante:150 * 150mm.
Todosparafusos parafusos com grau 8.8(Fábricas baratas usam baixo grau 4.8)Para garantir a correção do Estrutura da máquina firmemente e vida longa durante a máquina há muito tempo
Velocidade de formação real12-16m / min
Com água friaDispositivo(Para melhor produto)
19 engrenagens dirigem, 38 eixos de transmissãoEPelo eixo)
Tipo de coluna S.tRucureProjeto(Arco memorável de ferro fundido, espessura: 55mm)
5) pós corte hidráulicoDispositivo(Total precisa de dois moldes de cortador)
Postar para cortar, pare paraCorte, três.Tipo de peças de design da lâmina de corte, nenhum motor hidráulico de blanking:37KW, com dispositivo de perfuração compartilham uma estação hidráulica
Pressão de corte:0-25MPA (250bar.);CorteMaterial de ferramentas:Cr12mov.(= Skd11 com pelo menos Um milhão de vezes de cortar a vida), Tratamento térmico para HRC58-62 graus
A energia de corte é fornecida porA estação hidráulica independente
O sistema hidráulicocom filtro de óleo para o óleofiltragem, paragarantir que o óleo circulado seja limpo e alongar a vida de sistema hidráulico. (Veja a foto abaixo)
\
6) sistema de controle PLC
Inserir a produçãoDados(Lote de produção, PCs, comprimento, etc.) Na tela sensível ao toque, ele pode terminar a produçãoAutomaticamente.
Combinado com: inversor, codificador, etc
Tolerância cortada a comprimento≤ ± 1.milímetros
Controle de voltagem24V.
7) Rack de saída:Não alimentado, Umunidade,comrolos sobre isso para fácil movimento
8) Produto acabado